SUPERCONDUCTIVITY COMMUNICATIONS, Vol.19, No5, Octber, 2010
高温超電導ケーブルプロジェクトの冷却システム検証試験始まる! _ SUPERCOM 事務局取材_
スーパーコム事務局は、本年 4 月号に掲載した熊取試験場 ( 住友電工 ) における 30 m ケーブルを用いた事前検証試験、 8 月号に掲載した実証プロジェクトの現場となる東京電力旭変電所に続いて、今回は冷却システムの検証試験が始まった前川製作所守谷工場内の技術研究所を取材した。この NEDO プロジェクトは東京電力−住友電工−前川製作所が共同で実施しているもので、平成 23 年 11 月に実系統に接続後、 1 年間の運転が予定されている。
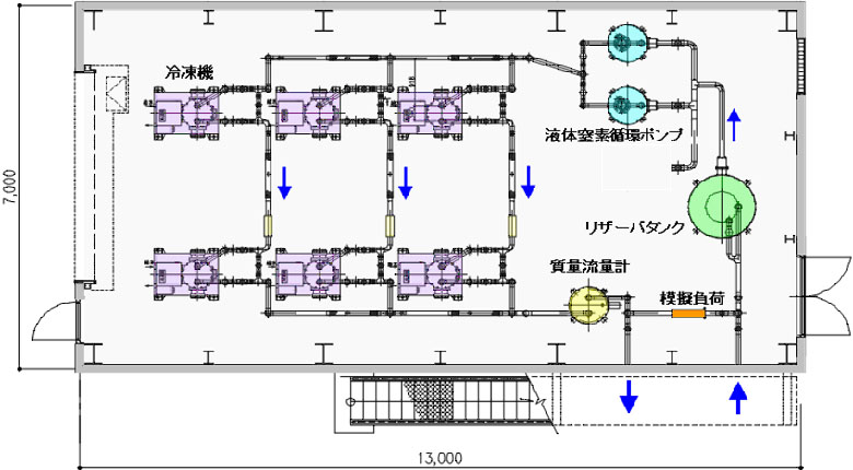
実証試験では約 250m の超電導ケーブルを液体窒素の循環によって冷却するが、図 1 はその心臓部にあたる旭変電所における冷凍機室の配置図である。液体窒素の冷却には 6 台の 1 kW スターリング冷凍機が用いられ、 2 台ずつ直列の、 3 本の並列ラインが構成される。熊取試験場で行われた試験では、ケーブルが短かったため直列につながれた 1 kW 冷凍機 2 台によって液体窒素の温度制御が行われていた。この前川製作所における冷却システムの検証試験設備の概観写真を図 2 に示した。これは図 1 の左下方向から全体を撮影したものである。このシステムは旭変電所で計画されているものと同じ配置で、床には薄い緑のテープで長方形が描かれており、それが実証試験における冷凍機室の大きさを表していた。手前に冷凍機 3 台が並列に置かれているのが見えるが、各ラインの奥には 1 台ずつ 1 kW 冷凍機を置けるようなスペース、配管が設けられており、旭変電所に移設した後にはこれらに残り 3 台の冷凍機が置かれる。冷却ラインには約 500 リットルの液体窒素が入っており、この日行われていた試験では 2.1 kW 模擬負荷によって 71 ~72 K に温められた液体窒素が 1000 リットル級のリザーバータンクに一旦蓄えられ、循環ポンプを経て冷凍機に入り 70 K に冷却されて出てきていた。送液圧力は 0.2 MPa(= 2 気圧 ) で、これによって液体窒素の沸点を上昇させ、気泡の発生を防いでいる。ちなみに旭変電所での実証試験で用いる液体窒素は 1 万リットルに及ぶとのことである。冷却システムの運転管理は、図 2 の奥に見える制御装置の真ん中あたりに設けられたタッチパネル式のモニタを用いて行われており、手動運転、自動運転とも可能とのことであった。なお、制御装置類は実証試験では冷凍機室の隣の建物 ( 計測室 ) 内に置かれる。
前川製作所によれば、本検証試験は 11 月末まで行われ、今年度内に旭変電所への移設を終えた後、春から現地での冷却システム試験を始めるとのことである。着々とかつ順調に各種試験が進んでいるこの日本初の高温超電導ケーブルプロジェクトより実系統への送電が始まる日が待ち遠しい。
最後に、本取材にご協力いただきました前川製作所技術研究所の町田明登氏、矢口広晴氏、玉田紀治氏、仲村直子氏、特に冷却システムの詳細な説明や様々な質問に答えていただきました町田様に感謝申し上げます。 (SUPERCOM 事務局取材班 )

図 1. 実証試験が行われる東京電力旭変電所における冷凍機室のレイアウト

図 2. 前川製作所における冷却システム検証試験の様子